ボニータドイス
物件情報
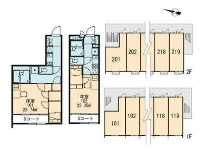
ボニータドイス の物件概要
【アパート】※地図上に表示される物件の位置は付近住所に所在することを表すものであり、実際の物件所在地とは異なる場合がございます。
ボニータドイスの空室情報
00件
最近見た物件
00件
検討リスト
株式会社成家 青砥店 > 物件カタログ > ボニータドイス
ボニータドイス
物件情報
ボニータドイス の物件概要
【アパート】※地図上に表示される物件の位置は付近住所に所在することを表すものであり、実際の物件所在地とは異なる場合がございます。
ボニータドイスの空室情報
